Bạn có tin rằng chỉ với 500 triệu đồng, bạn vẫn có thể xây nhà 2 tầng đẹp cho gia đình mình? Bằng cách lựa chọn thiết kế phù hợp, vật liệu tối ưu và thi công hợp lý, giấc mơ sở hữu tổ ấm hiện đại, tiện nghi hoàn toàn có thể thành hiện thực.
Ngôi nhà 2 tầng trong bài viết được xây dựng với mức kinh phí chỉ khoảng 500 triệu đồng, bao gồm cả phần thô và nội thất cơ bản. Dưới đây là một số khoản mục tiêu biểu:
- Phần thô: 325 triệu
- Giàn cửa sắt: 25 triệu
- Gạch lát sàn: 17 triệu
- Đá granite: 13 triệu
- Thiết bị vệ sinh: 19 triệu
- Hệ thống đèn chiếu sáng: 5 triệu
- Nhôm kính: 6 triệu
- Sơn nước: 20 triệu
- Tủ bếp: 30 triệu
- Giường ngủ: 15 triệu
- Tủ quần áo: 25 triệu
Nhờ tính toán kỹ lưỡng và thi công hợp lý, tổng chi phí vẫn đảm bảo trong ngân sách 500 triệu đồng mà không làm giảm chất lượng sống.


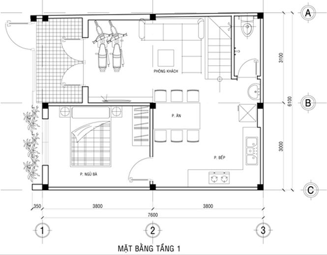
Mặt bằng tầng một: Một bên là sân và nơi để xe, một bên là phòng khách. Phần còn lại bố trí phòng ăn và bếp. Phòng ngủ hướng ra cửa chính thông thoáng.

Tầng 2: Bố trí phòng ngủ bố mẹ và phòng ngủ của con. Hai phòng dùng chung ban công hướng ra bên ngoài lấy sáng. Phía sau là phòng vệ sinh, sân phơi và cầu thang.


Một số mẫu thiết kế nội thất nhà theo phong cách hiện đại cho bạn tham khảo: Phòng khách gồm bộ bàn ghế sofa để tiếp khách. Tận dụng không gian dưới gầm cầu thang để làm kệ đựng đồ.










Thực tế đã cho thấy, xây nhà 2 tầng đẹp với 500 triệu hoàn toàn khả thi nếu bạn biết cách tính toán hợp lý và chọn phương án thi công phù hợp. Đây là lựa chọn tiết kiệm nhưng vẫn đảm bảo thẩm mỹ và công năng cho gia đình trẻ. Nếu bạn đang có ý tưởng riêng, hãy chia sẻ bên dưới hoặc liên hệ để được hỗ trợ nhé!
Link gốc: Tại đây













